Einfamilienhaus in Hamburg

Privat / Doppelhaus
Projekttyp :
Doppelhaus, Privat
Bauweise :
Baujahr :
Fundament :
Gesamtfläche :
Heizung :
Lüftung :
Anzahl der Räume / Wohnungen / Module :
Besonderheiten :

Dieses hochwertige Einfamilienhaus in Hamburg wurde in modernster Modulbauweise gebaut. Es ist einzigartig und individuell gestaltet, um Ihren Anforderungen und Bedürfnissen gerecht zu werden.

Das Haus besteht aus mehreren Modulen, die auf einem stabilen Fundament montiert sind. Es ist langlebig und widerstandsfähig gegen extreme Wetterbedingungen. Das Haus ist mit modernster Technologie ausgestattet, um ein komfortables und sicheres Wohnen zu ermöglichen.

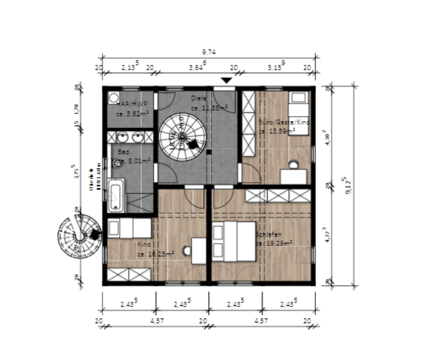
Das Innere des Hauses ist geräumig und modern gestaltet. Es verfügt über große Fenster, die viel natürliches Licht hereinlassen und eine atemberaubende Aussicht auf die Stadt bieten. Es gibt mehrere Schlafzimmer und Badezimmer, die alle mit hochwertigen Materialien und Armaturen ausgestattet sind.

Insgesamt ist dieses Einfamilienhaus in Hamburg in Modulbauweise eine perfekte Wahl für alle, die eine moderne und stilvolle Wohnmöglichkeit suchen. Es ist einzigartig, langlebig und bietet alle Annehmlichkeiten, die Sie benötigen, um ein komfortables und sicheres Leben zu führen.

Wenn Sie auf der Suche nach einer stilvollen und erschwinglichen Wohnlösung sind, dann sind unsere Villen die perfekte Wahl für Sie. Kontaktieren Sie uns noch heute, um weitere Informationen zu erhalten und um zu erfahren, wie wir Ihnen helfen können, Ihr Traumhaus zu verwirklichen.

Teilen Sie dieses Projekt

Weitere Projekte

Privat
Geschosswohnungsbau
Gewerbe/ Geschosswohnungsbau
Geschosswohnungsbau
Gewerbe/ Geschosswohnungsbau
Geschosswohnungsbau
Gewerbe/ Geschosswohnungsbau
Geschosswohnungsbau
Gewerbe/ Geschosswohnungsbau
Gewerbe
Gewerbe/ Kita
Privat
Einfamilienhaus
Privat/ Reihenhaus/ Einfamilienhaus
Privat
Privat/ Reihenhaus